Strathmore Mansion Laser Scanning and BIM Model
Strathmore Mansion Laser Scanning and BIM Model
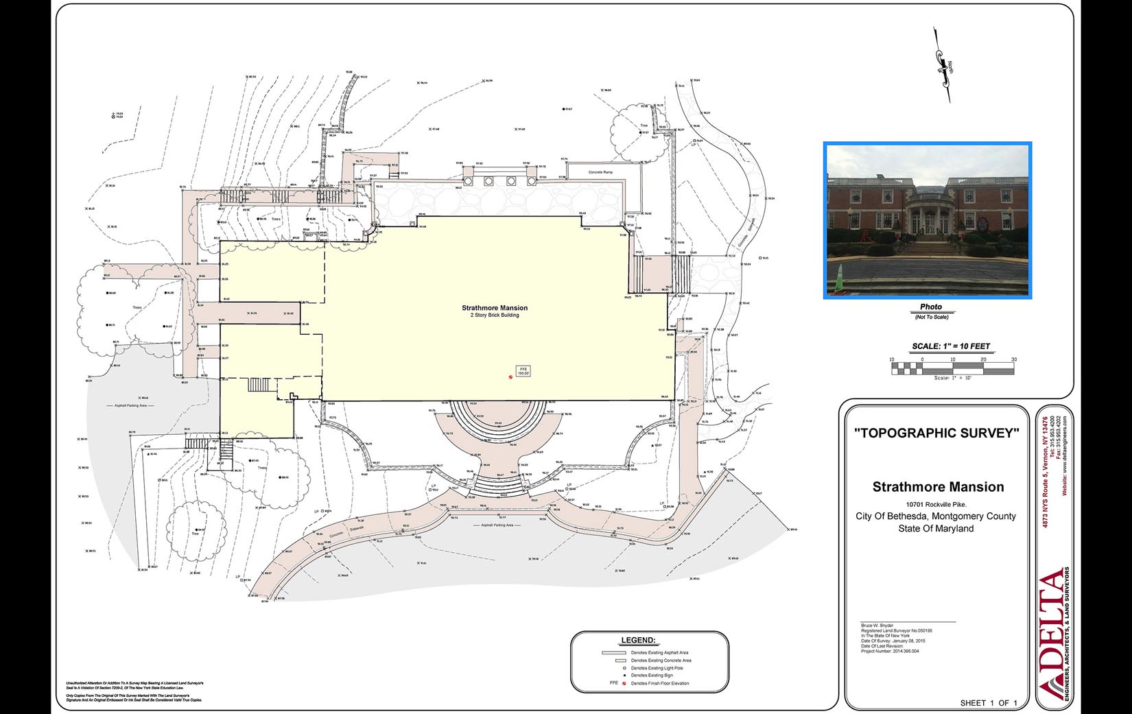
The Mansion at Strathmore in North Bethesda is a historically significant facility privately constructed in 1902 and now owned by Montgomery County, MD.
The Mansion at Strathmore in North Bethesda is a historically significant facility privately constructed in 1902 and now owned by Montgomery County, MD.

Human Resources Coordinator
Ms. Trisha Morehouse, SPHR is the Human Resources Coordinator for Delta. A graduate of Tompkins Cortland Community College with an associate’s degree in Business Administration and in Liberal Arts, Trishia has spent the last 30 years as the Director of Human Resources at a large international company, that allowed her to travel across the United States and Canada. At Delta, Trisha is responsible for leading our workforce administration & development, including serving as the point person for issues involving new employee recruitment, employee onboarding, and the administration and processing of benefits & payroll.

Director of Facilities (Structural) & Specialty Sports Engineering
Ahmed M. Ibrahim, PhD, PE, SE, is the Director of Facilities (Structural) and Specialty Sports Engineering. Ahmed earned a Bachelor’s and Master’s Degree from Cairo University and PhD from Western University in 2017. Since graduation, Ahmed has worked on major infrastructure projects across the United States. At Delta, Ahmed oversees both the Structural group and the Specialty Sports group. Ahmed is proficient in several different softwares, including Revit, Autocad, Ram, Etabs, Sap, Matlab, Hilti Profis and Risa.

Director of Specialty Precast Services
Ms. Tavakoli is the Director of Specialty Precast Services at Delta and has over 20 years of experience in structural engineering, specializing in precast concrete design. She has overseen design and production drawings for numerus projects including commercial and residential multi-story buildings, industrial buildings, schools. She has also provided structural design for mission critical facilities such as data centers. Alaleh is also well-versed with research and development tasks with a focus on finite element analysis and determining the feasibility of utilizing new materials.

Director of Transportation/Civil Services
Mr. Maby is the Director of Transportation/Civil Services for Delta’s Endwell Office. Chris has a wide range of responsibilities that include direct oversight of projects, allocating staff resources, mentoring and training junior staff, and business development and client relations. Chris has over 30 years of civil engineering experience in the areas of due diligence for developments, site planning and design, as well as traffic impact studies, stormwater management and SWPPP development.

Director of Ecological Services
Mr. Sheridan is the Director of Ecological Services. With over 25 years of professional experience, Steve specializes in the design and construction of compensatory wetlands for permit mitigation purposes, has hands-on experience with hundreds of diverse environmental studies, and has collected and curated GIS datasets for ecological projects of all sizes. His technical expertise includes wetland identification, wetland permit preparation, mitigation wetland planning and construction monitoring, water quality modeling, and survey-grade GPS utilization. With diverse experience on projects across municipal and commercial sectors, Steve is our subject matter expert on wetland delineation projects.

Director of Architectural Services
Eric is the Director of Architectural Services at Delta. With over 20 years of experience and a wide range of expertise in architectural design, he is responsible for staffing, oversight, and client satisfaction for all architectural projects based in the Chevy Chase Office. Eric specializes in complex project management and has provided security design, building analysis, programming, master planning, specifications, and construction documents for projects completed for federal, judicial, medical, academic, commercial, and laboratory facilities. He is responsible for maintaining Quality Management System compliance in the Chevy Chase Office.

Business Development Manager
Gabe Osterhout is the Business Development Manager in the Business Development Group in the Endwell Office. Gabe received his Bachelor’s Degree in Journalism/Mass Communications from St. Bonaventure University. He brings a great deal of experience from his background as a reporter and public relations specialist. He has strong communication skills and will enhance the video capabilities of the company. Gabe is responsible for proposal and qualifications submissions, development and strategy, design of a broad range of marketing communications, and improving internal CRM databases to support company objectives.

Chevy Chase Group Director
David is the Chevy Chase Office Group Director at Delta and has over 25 years of experience working with a variety of project types for academic, federal, institutional, and private clients that include space planning, commercial and institutional buildings, laboratory renovations, hospital and healthcare facilities, signage and way finding systems and exhibit design. His experience includes building analysis, programming, design, specifications, detailing, construction documents, value engineering, and contract administration.

Director of Landscape Architecture
Mike recently joined Delta after over thirty years as the founder and president of HAAS Landscape Architects. He brings a wealth of knowledge, experience, and creative problem solving skills to his new role. Mike has established a strong track record of site planning and design success for the municipal, commercial, non-profit and residential sectors and has been recognized with a steady stream of awards and industry recognition throughout his career. His broad knowledge of si te planning for human use, sense of design balance and aesthetics, and extensive network of industry resources make it possible for Mike to envision an ideal solution and then bring it to life.

Director of Survey & Mapping Services
Tom is the Director of Survey & Mapping Services at Delta and has more than 30 years of experience providing boundary, topographic, construction stakeout, legal descriptions, mapping, and elevation certificates in New York State. He works with land owners, municipalities, real estate agents and attorneys, title companies and lending institutions to meet their varied survey & mapping needs. As Director, Tom oversees and works closely with field crews and CAD technicians to plan projects and to ensure high quality results on all survey and mapping projects.

Director of Environmental Services
Mr. Johnson is the Director of Delta's Environmental Group. Bill oversees projects involving asbestos assessments and abatement project monitoring, lead-based paint inspections and related samplings, building inspections, air sample collection, indoor air quality evaluations, industrial hygiene investigations, water and hazardous material sampling, and evaluation of OSHA compliance issues. Bill has managed hundreds of sampling and abatement projects performed at college campuses, hospitals, post offices, and many other private and public facilities. He ensures that services provided are in full compliance with applicable state and federal regulations.

Vice President/Director of Facilities Services
Rick is Vice President and Director of Facilities Services for Delta. He is responsible for managing staffing, execution, and client satisfaction for all facilities engineering projects. Rick has extensive mechanical engineering design expertise with emphasis on HVAC, plumbing, fire protection, and process piping systems as well as design of geothermal systems. He is a sought after project manager well known in professional and industry circles who has successfully managed diverse and demanding commercial, industrial, governmental, and higher education projects.

Chief Financial Officer
Todd W. Bushnell joins Delta as our new Chief Financial Officer (CFO). Since graduating with his Bachelor’s Degree in Business Administration, he has spent the past 39 years as the CFO or Controller of several private businesses. At Delta, Todd is responsible for company cost control, financial monitoring, reporting and forecasting, risk management, and the management of the Accounting, Finance, and Human Resources functions of the firm.

Senior Vice President
As Senior Vice President, Jim is responsible for the operational administration, coordination, and results of all Delta projects as well as the direction of corporate information technology. He leads the development of company objectives and policies that impact company operations, employees, and financial performance. Jim leads Delta Technical Group Directors to achieve company goals, reviews group performance, and serves as the Chief Quality Officer for our ISO 9001:2015 certified Quality Management System.

President & CEO
Anthony has been President & CEO of Delta since 2006 and oversees all aspects of the company. An electrical engineer and project manager by training, Anthony understands what it takes to complete complex projects on time and on budget. He leads the Business Development Group and is responsible for strategic planning, marketing, and client development and relations. A lifelong resident of New York’s Southern Tier, Anthony is actively engaged in many community service opportunities ranging from Mercy House of the Southern Tier to the SUNY Broome Board of Trustees.